GALERIA
Local: Ribeirão Preto, SP
Construção: 250 m²
Terreno: 500 m²
Projeto para uma de nossas casas de concreto aparente, madeira e vidro com ambientes integrados e em plena comunicação com o paisagismo circundante.
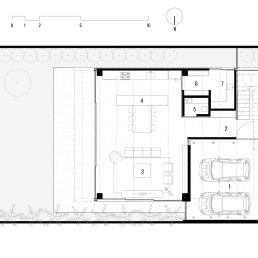
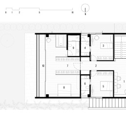
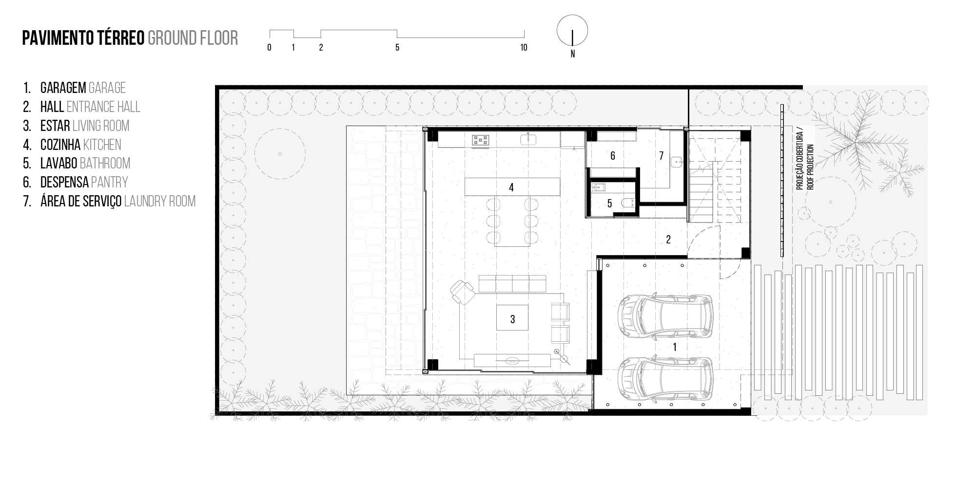
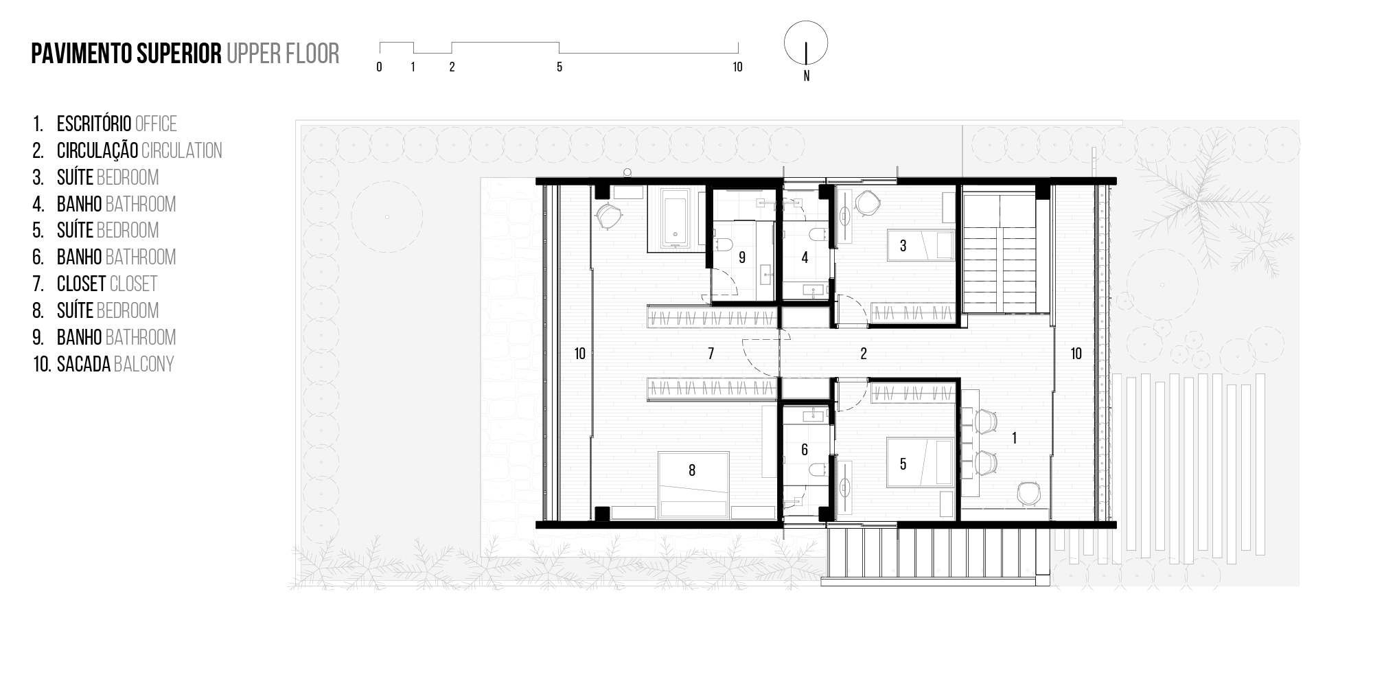
O concreto in natura apresenta-se como o grande mote construtivo deste trabalho e está presente em todos os componentes: colunas e vigas estruturais, lajes protendidas e também nas vedações da casa. A opção pelo emprego de pré-moldados vale-se da interessante relação de custo-benefício entre o vão livre estrutural e tempo reduzido de obra além, obviamente, dos baixíssimos desperdícios inerente as técnicas construtivas industrializadas. O gosto pessoal dos clientes pelo material exposto completa o conjunto de benefícios deste tipo de construção à medida que as peças chegam ao canteiro de obras já finalizadas e não necessitam de acabamentos executados a posteriori. O intenso uso do concreto aparente, aqui utilizado em sua forma pré-moldada, aliado as divisórias em drywall termo-isoladas com lã mineral determina um tipo de casa com baixíssima manutenção ao longo de toda a sua vida útil.
O partido minimalista adotado na construção acaba por valorizar os três principais elementos da composição: o concreto, a madeira e o vidro e ajuda a integrar ainda mais a casa com os jardins tropicais ao redor à medida que unifica todo o espaço do piso térreo e permite o pleno envidraçamento da fachada posterior e uma de suas laterais. Esta sinergia entre o espaço construído e o “natural”, além de agregar uma amplitude muito grande aos ambientes internos, propicia ótimas condições de iluminação e ventilação naturais.
Caracterizado por vários dos elementos da chamada “casa passiva” ou ecológica, este sobrado moderno incorpora questões de sustentabilidade desde a escolha das técnicas construtivas até o reduzido custo de uso mensal devido ao emprego eficiente dos recursos naturais: abundante iluminação natural, circulação de ar natural plena, painéis fotovoltaicos, aquecedores solares, intenso uso da vegetação, captação de águas pluviais, entre outros.
Local:Ribeirão Preto, SPÁrea Construída:250 m²Área do Terreno:500 m²Período de Execução:2020Equipe de Arquitetura:Pedro Cornetta, Luigi BorgesProjeto Estrutural de Concreto:Marka Pré-FabricadosProjeto Hidrossanitário:Latar EngenhariaProjeto Elétrico:Latar EngenhariaExecução de Obra:Rodrigo KulikoffExecução de Estrutura de Concreto:Marka Pré-FabricadosFotografia:Pedro Cornetta














































