GALERIA
Local: São Roque, SP
Construção: 415 m²
Terreno: 1850 m²
Implantada em um terreno de forte aclive, a Casa 258 nasce do princípio de projetar adequadamente ao lugar, ocupando o solo e a paisagem com sutileza e respeito e preservando o bosque já existente no lote. O resultado é uma arquitetura que, de um lado, se abre ao pôr do sol e ao vale circundante, tendo sua fachada marcada pelos tons dourados do concreto sob a luz do poente e, do outro, mergulha na mata sombreada e silenciosa, iluminada pela luz filtrada das copas.
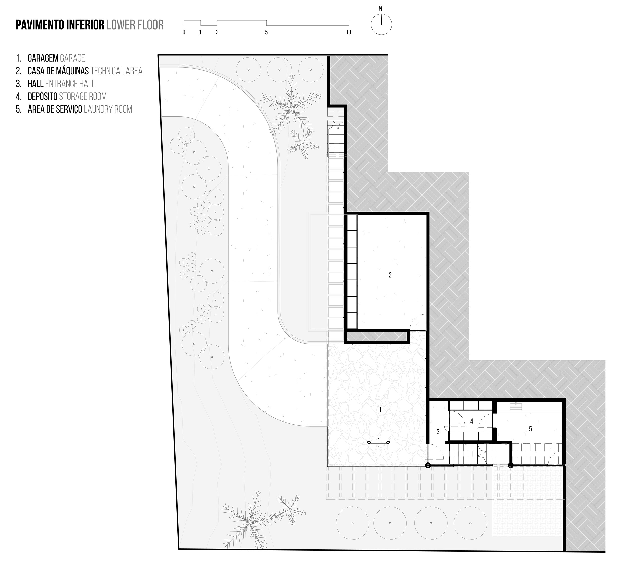
O pavimento inferior, visível apenas da fachada frontal, é inteiramente construído em concreto aparente e pedra rachão. Esse embasamento sólido que acomoda garagem, área de apoio e serve como muro de contenção, também suporta o delgado pavilhão em estrutura metálica e madeira acima.
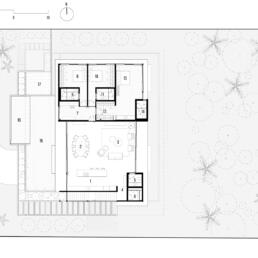
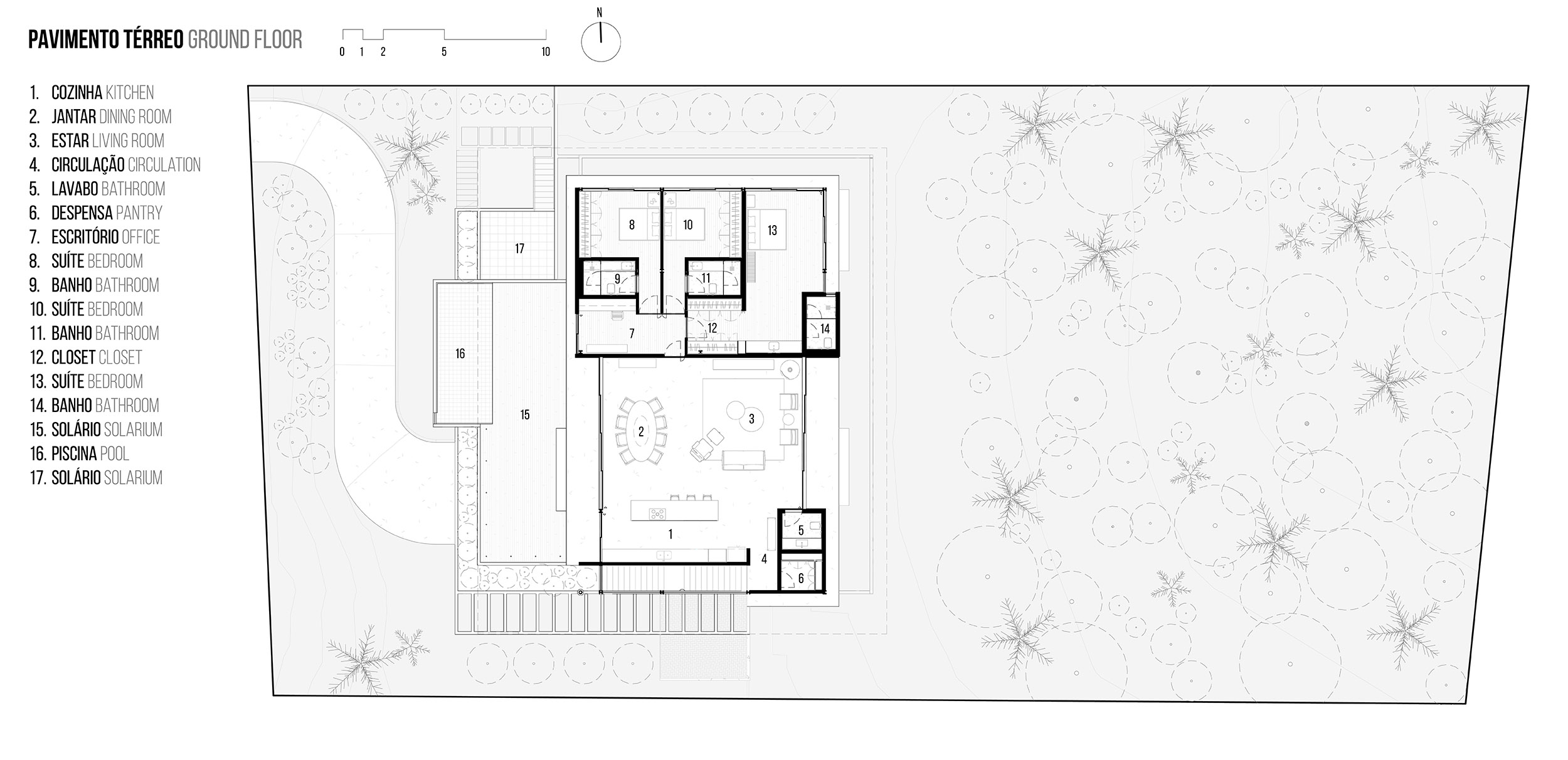
O acesso principal se dá por uma escada em meio a concreto e vidro que conduz ao nível superior. A planta da residência é clara: um único volume retangular dividido ao meio por painéis de pinho carbonizado isolam duas regiões distintas. A área privativa, composta por três suítes e escritório, tem característica bem intimista e vista predominante para a mata. O espaço de convivência, composto por sala, jantar e cozinha completamente integrados, é dotado de grandes esquadrias piso-a-teto que ampliam a entrada de luz e a conexão com o entorno: de um lado, o bosque preservado e, de outro, o vale aberto.
A Casa 258 é exercício concreto sobre a arquitetura como narrativa de contrastes: entre sombra e luz, bosque e vale, peso e leveza. Um projeto que conjuga rigor técnico, sensibilidade plástica e compromisso com a ocupação responsável do território.
ENGLISH:
The House 258 is born of the principle of respect for nature and preserves the existing woods in the terrain. The result is an architecture that, on the one hand, opens at sunset and the surrounding valley, having its facade marked by the golden tones of concrete in the sunlight and, on the other, dives into the shaded and silent forest, illuminated by the filtered light.
The main access occurs through a long ladder between concrete and glass that drives at the top level. The floorplan is clear: a single rectangular volume divided in two distinct regions. The private area, consisting of three bedrooms, has a very intimate feature and predominant view of the woods. The living space, completely integrated, is endowed with large glass doors that expand the entry of light and the connection to the surroundings: on the one hand, the preserved woods and, on the other, the open valley.
Local:São Roque, SPÁrea Construída:415 m²Área do Terreno:1850 m²Período de Execução:2022 - 2024Equipe de Arquitetura:Pedro Cornetta, Renan Antiqueira, Luigi BorgesProjeto Estrutural de Concreto:DRC EngenhariaProjeto Estrutural Metálico:Grupo RP Projeto Hidrossanitário:Latar EngenhariaProjeto Elétrico:Latar EngenhariaExecução de Obra:CazesExecução de Estrutura Metálica:Grupo RPFotografia:João Paulo SoaresFilmagem:Archview, João Paulo Soares, Pedro Cornetta


































































